Mit seinen drei Etagen bietet das Weserbergland-Zentrum (WBZ) vielfältige Möglichkeiten, die durch das variable Wandsystem noch erweitert werden können. Das Tagungszentrum kann so in kleinere und größere Bereiche geteilt werden. Somit ergeben sich beste Voraussetzungen für Ihre Messe oder Tagung, Ihr Konzert oder den Ball.
Tagungen
Im Saal 1 bis 5 mit Pausen- und Ausstellungsfoyer können bis zu 350 Personen bei parlamentarischer Bestuhlung untergebracht werden.
Messe
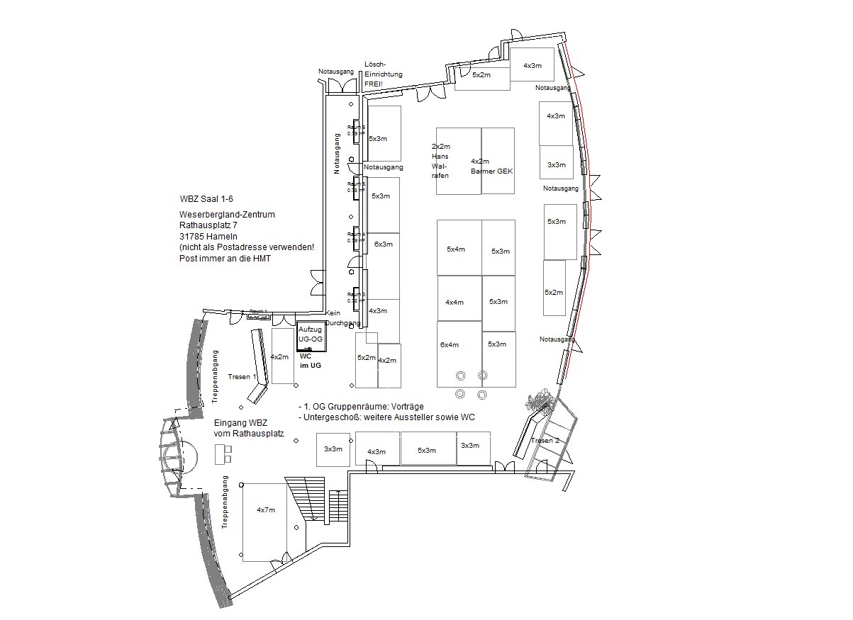
Bei Messen können im Unter- und Erdgeschoss rund 1200 Quadratmeter genutzt werden. Eine ebenerdige Anlieferung ist möglich, wobei für das Untergeschoss auch ein Lastenaufzug zur Verfügung steht. Während der Messe können in den Gruppenräumen Vorträge abgehalten werden, Stromanschlüsse sind fast überall möglich. Bei Messen werden im Erdgeschoss alle mobilen Wände in Wandschränken geparkt.
Konzert
Bei Konzerten in Saal 1 bis 5 mit Pausenfoyer können je nach Bühnengröße bis zu 500 Personen ebenerdig in Reihenbestuhlung untergebracht werden. Umfangreiche Bühnenbeleuchtung vorhanden. Bei der Nutzung von Saal 1-6 (Foyer entsprechend kleiner) können je nach Bühnengröße bis zu 700 Personen Platz finden.
Ball
Je nach Größe der Tanzfläche können bei Saal 1 bis 5 mit Foyer für Buffet-Aufbau bis zu 300 Personen an runden Tischen untergebracht werden. Bei Saal 1 bis 6 (Foyer entsprechend kleiner) sind bis zu 450 Personen an rechteckigen Tischen möglich.






















































































































































































































































































































































































































































































































































