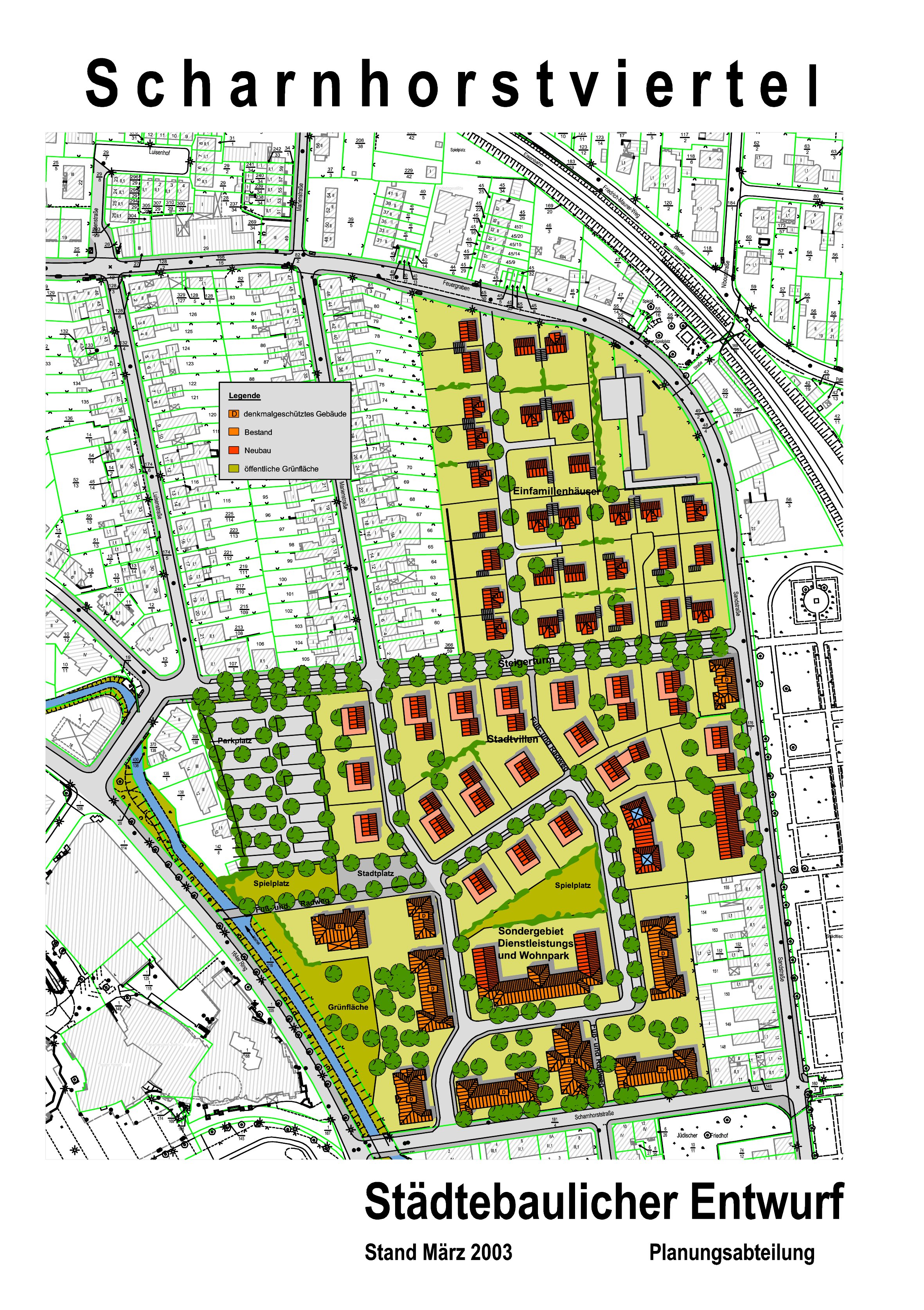
Nach dem ersten Teilabzug der britischen Kräfte im Jahr 2001 stand das 8,9 Hektar große Gelände der Scharnhorstkaserne frei. Durch die Innenstadtlage und gute Verkehrsanbindung bot sich hier die große Chance, die denkmalgeschützten Gebäude und die abgeräumten Freiflächen einer städtebaulich attraktiven Nachnutzung zuzuführen. So hat sich das ehemalige Kasernengelände nach und nach in einen neuen und modernen Stadtteil entwickelt, der auch positiv auf das gesamte Umfeld wirkt.
Die Stadt legte bei den Planungen Wert darauf, für das Gebiet eine gemischte Nutzung voranzutreiben. Auf dieser Basis entstand ein Wohn- und Dienstleistungspark im Bereich der denkmalgeschützten Bausubstanz (im südlichen Teil des Geländes) sowie Wohnungen in Stadtvillen (im mittleren Bereich) und Einfamilienhäuser (im nördlichen Bereich).
Der zu erhaltende Gebäudebestand der Kaserne sowie die Neubauflächen wurden direkt von der Bundesanstalt für Immobilienaufgaben (BImA) veräußert, die Erschließung des Gebietes erfolgte in in Eigenregie durch die Stadt. Neben Wohnhäusern beherbergt das Gelände heute unter anderem ein Altenpflege- und Altenwohnheim, ein Fitnessstudio, eine Praxis für Physiotherapie und weitere Gesundheitseinrichtungen sowie eine Reihe kommerzieller und nichtkommerzieller Nutzungen. Zudem gibt es einen attraktiven Spielplatz, der sich großer Beliebtheit erfreut.

































































































































































































































































































































































































































































































































































